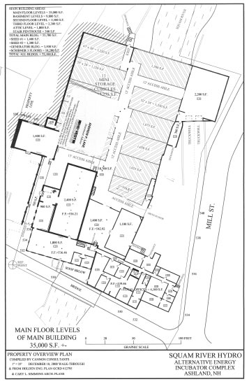
Squam River
Hydro Main Building
Building 13
The former Wet Finish Building, constructed circa 1888 (outline shaded on Figure 5).
Lot: #2
Zoning: ¨Industrial
Frontage: ¨Mechanic Street; for length see Survey
Access: ¨Mill Street via the internal ramp.
Construction: ¨IBC2000 Type IVB (heavy timber, unprotected, sprinklered.
Utilities: ¨electric from (unknown);
¨gas:
¨steam heat from Bldg 15;
¨cooling water from (unknown);
¨sprinkler water from connection at basement of Bldg 14 to recent municipal line in Mill Street.
¨potable water from municipal line in Mill Street.
Sewer: ¨gravity to ejector pump immediately adjacent at basement of Bldg 16, then to municipal main in Mill Street.
Bathrooms: ¨none.
Floor drains: ¨none.
ADA access: ¨ floor 1 minor ramp needed from internal ramp.
Floors: 3 + basement
Comments: This building is sited immediately adjacent to and north of the dam. It has ceased to be used for manufacturing and is now only partially used for storage. Its removal could yield valuable parking or dock access to Bldg 16. The possibility exists that this structure may have historic value to the community.

Building 14
The Dry Finish Complex, started in 1950, added onto in 1976 and 1986 (Figure X9). Includes Bldg 14A loading docks
Lot: #2+#3
Zoning: ¨Industrial
Frontage: ¨Mill Street; for length see Survey
Access: ¨Mill Street.
Construction: ¨IBC2000 Type IIB (noncombustible, unprotected, sprinklered)
Utilities: ¨electric from (unknown);
¨gas:
¨steam heat from Bldg 15;
¨cooling water from (unknown);
¨sprinkler water from connection at basement to recent municipal line in Mill Street.
¨potable water from municipal line in Mill Street.
Sewer: ¨gravity to ejector pump in basement, then to municipal main in Mill Street.
Bathrooms: ¨none.
Floor drains: ¨none.
ADA access: ¨lower sloped ramp needed from grade.
Floors: 1+ partial basement
Roof: ¨negligible pitch, single-ply membrane over steel deck supported throughout by steel beams and columns, except OWJ at the long span section in the northeast corner.
Floor 1: 21,530 useable square feet, including Bldg 14A.
¨concrete on galvanized steel deck and steel beams predominantly, with some areas probably slab on grade. Predominantly insulated at exterior walls and roof, except retaining wall on north, windows at River face, high floor loading design; floor not level with any adjacent building. Clear heights of 19’-0” at OWJ and 12’-0” at steel beams. Bldg 14A is uninsulated concrete block.
Basement: Only under the southwest corner and unimproved.
Freight lift: ¨access to freight elevator at Bldg 17B and scissor lift at Bldg 13.
Lighting: ¨ (unknown).
Parking: ¨municipal and owned, across Mill Street.
Comments: This building sits directly over the Squam River and the Packard Dam. It has two tractor dock spaces on Mill Street equipped with levelers, but is otherwise blocked from direct street access by other structures at Mill and Hill Street, and by a retaining wall and grade change at Mechanic Street that varies from 8-16 feet.

Building 16
The XXX, constructed circa 1840 (Figure 5).
Lot: #2 + #3
Zoning: ¨Industrial
Frontage: ¨Mill Street; for length see Survey
Access: ¨Mill Street.
Construction: ¨IBC2000 Type IIB (noncombustible, unprotected, sprinklered.
Utilities: ¨electric from transformer vault at northwest corner at intersection with Bldg 15B.
¨gas:
¨steam heat from Bldg 15;
¨cooling water from (unknown);
¨sprinkler water from connection at basement to recent municipal line in Mill Street.
¨potable water from municipal line in Mill Street.
Sewer: ¨gravity to ejector pump adjacent at basement of Bldg 16, then to municipal main in Mill Street.
Bathrooms: ¨none.
Floor drains: ¨(unknown)
ADA access: ¨floor 1 minor ramp needed from grade.
Floors: 1

Building 17
Offices

Blank area has already been rented out.
